厦门地产情报站
关注
每日及时推送厦门人居楼市、新闻资讯、市场动态、为购房者提供服务和参考!
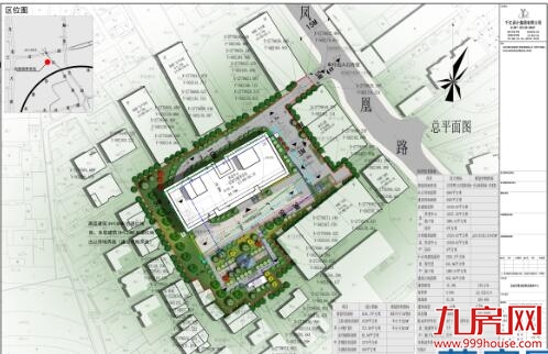
龙岩市晟佳园养老服务中心项目位于新罗区中城凤凰路,现龙岩华盛工程机械设备有限公司申请该项目方案的审查。我局于2019年5月14日在龙岩行政服务中心地下一层审图室(B115)组织召开了该项目建筑设计方案审查会。现对龙岩市晟佳园养老服务中心项目方案公示,具体详见附图:
设计单位:千亿设计集团有限公司;
设计资质:甲级;
证书编号:A135003353
根据《中华人民共和国城乡规划法》第四十三条、五十条及福建省实施《中华人民共和国城乡规划法》第三十五条、五十三条规定和《福建省城乡规划信息公开公示暂行办法》第二十一条规定,我局现将龙岩市晟佳园养老服务中心项目方案进行公示,征求利害关系人意见。公示时间为2019年6月18日至2019年6月26日止。
在公示期限内,利害关系人若有意见,可来信、来访、来电或采取听证等方式向我局反映,发表意见和看法。逾期未提出,视为无异议。龙岩市自然资源局办公地点:龙岩市新罗区莲新南路2号;邮编:364000;网址:http://zrzyj.longyan.gov.cn/,联系电话:0597-3308155,联系人:陈工。
附:01彩色总平图
02鸟瞰图
03西南透视图
龙岩市自然资源局
2019年6月14日
05月03日
03月30日
08月28日
08月08日


【扫一扫关注】


【扫一扫关注】


【扫一扫关注】
最新评论