市区征迁又有大动作
占地约79.2万㎡
含益民片区、浦南科宝硅钢和闽南老家三个项目
其中
益民片区项目征迁工作预计年底可全面完成
浦南科宝硅钢项目征迁工作已接近尾声
闽南老家项目于近日发布征迁拆除工程比选公告
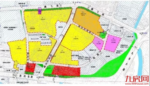
益民片区项目
益民片区项目征迁范围南至胜利路,北至腾飞路,东至广电路,西至大修厂路,总占地面积490亩,涉及征迁户数1327户,约4200人,建筑物2016宗,总建筑面积近50万平方米,其中,市尾961宗,塔后片区771宗,国有片区284宗。预计12月底可全面完成拆除工作。
项目5月16号启动,到目前已经完成签约超95%,封房90%,拆除也接近70%。
浦南科宝硅钢项目
科宝硅钢项目征迁范围涉及土地面积588.216亩,建筑物100宗,建筑面积70043.96平方米。截至目前,建筑物100宗,面积70043.96平方米全部签约完成,签约率达到100%;土地完成签约578.22亩,完成98.3%。整个项目征迁工作已接近尾声。
闽南老家项目
闽南老家项目位于漳州市龙文区,总投资达70亿元,占地面积7.3万平方米,是文旅产业综合开发项目,将打造集文化展示、民俗体验、商贸交流、休闲度假、生态居住为一体的体验型互动式文旅生活空间。
文川里
除了以上三个征迁项目有新动作外,位于芗城区解放路的文川里也将在年底或明年启动征迁工作。
(文川里卫星图)
征迁一直是政府部门高度重视的民生项目之一,群众的安置工作更是重中之重,为了提升群众满意度,让群众更有幸福感,芗城区和龙文区都出台了关于征迁“双困户”安置保障实施意见。
那么,这一政策的实施,会给征迁群众带来什么利好呢?
一起来看看吧!
芗城区征迁“双困户”安置保障实施意见
申请条件
1、长期居住芗城区辖区内且具有芗城区常住户口(直系家庭成员)的被征迁户;
2、申请人及共同申请家庭成员的家庭年收入低于公布的中等偏下家庭年收入标准(具体按家庭年收入低于上一年度全区居民人均可支配收入的3.6倍、家庭财产低于上一年度全区居民人均可支配收入的7.2倍认定);
3、申请人及共同申请家庭成员的住房和被征收房屋可安置面积低于人均15平方米,且申请人及共同申请家庭成员总的可安置总面积不高于60平方米。
保障结果
被征收人符合“双困户”条件的,在安置补偿时,实行产权调换,安置面积最低保障的办法(最低安置保障面积含自有安置面积,不足部分给予补足)如下:
1、家庭人口3人以下的(含3人),安置保障面积原则上为45平方米,不补差价;
2、家庭人口4人以上的(含4人),安置保障面积原则上为60平方米,不补差价;
3、征迁“双困户”原则上不予扩购;因结构原因,确实需要扩购的,本着自愿购买的原则,扩购面积20平方米以内(含20平方米)的部分,按征收补偿方案规定的价格购买,征收补偿方案未明确的按安置小区的建安成本价购买;扩购面积超出20平方米以上的部分,按安置的小区市场价购买。
龙文区“双困户”安置保障实施意见
申请条件
1、长期居住龙文区辖区内且具有龙文区常住户口(直系家庭成员)的被征迁户;
2、——申请人及共同申请家庭成员的家庭年收入低于公布的中等偏下家庭年收入标准(具体按家庭年收入低于上一年度全区居民人均可支配收入的3.6倍、家庭财产低于上一年度全区居民人均可支配收入的7.2倍认定);
3、申请人及共同申请家庭成员的住房和被征收房屋可安置面积低于人均15平方米,且申请人及共同申请家庭成员总的可安置总面积不高于60平方米。
保障结果
家庭人口3人以下的(含3人),安置保障面积原则上为45平方米,不补差价;家庭人口4人以上的(含4人),安置保障面积原则上为60平方米,不补差价。
对于市区的这一波征迁,小伙伴们又是怎么看的呢?
欢迎在文章下方留言,我们扶你上墙~

















闽公网安备 35020302035470号
最新评论