10月16日,晋江市自然资源局将公开拍卖出让晋江中心市区的罗裳片区三幅商住地块,分别为P2020-4号、P2020-5号、P2020-23号地块,合计出让土地面积65443平方米,三宗地块起拍价分别为1.88亿元、1.46亿元、1.85亿元,三宗地块均将采取“限房价,竞地价”竞拍方式出让,其中,P2020-4号地块建成后毛坯商品住宅最高销售均价为13552元/平方米,P2020-5号地块建成后毛坯商品住宅最高销售均价为13509元/平方米,P2020-23号地块建成后毛坯商品住宅最高销售均价为13274元/平方米。
罗裳片区
中心板块作为晋江主城区最核心的组成部分,将打造成晋江综合服务中心。
依托区域级公共中心和城区级公共中心,形成的晋江综合服务中心。
罗裳片区所属的晋江中心板块即晋江老城区,是晋江市的商业中心、行政中心、文化中心,是当前最为成熟的板块。区域内市政府、政务中心、万达广场、宝龙城市广场、SM国际广场、实验小学 、市第一中学、市医院、世纪公园、敏月公园等商业、行政、教育、医疗、休闲各方面配套完善;现片区内可出让地块逐年减少,住宅市场整体呈供不应求态势,销售均价逐年上涨;吸引融创、龙湖、万达、世茂、保利、中南、正荣等品牌房企进驻。
地块西临晋江行政大道——世纪大道,座落于晋江发展最为醇熟的主城区。世纪大道是晋江发展主轴,贯通南北,即是景观大道,承担晋江创新活力走廊的形象代表,也是一条行政大道,连接晋江市政府、科技馆、博物馆、文化中心、体育中心、青少年宫等综合服务中心。加之地块周边长兴路、福兴路、晋光路等主干道,宽阔畅达,出行优势可见一斑。
地块位置图
P2020-4/P2020-5号
P2020-4号地块位于晋江市世纪大道与文化路交叉口东南侧,东至18米六号路,西临70米世纪大道,南至伴山御景,北至30米文化路。
P2020-5号地块位于晋江市世纪大道与拥军路交叉口东南侧,东至18米六号路,西临70米世纪大道,北至18米拥军路。
P2020-4/P2020-5号红线规划图
P2020-4号地块红线图
P2020-4号地块现状图
P2020-5号地块红线图
P2020-5地块现状图
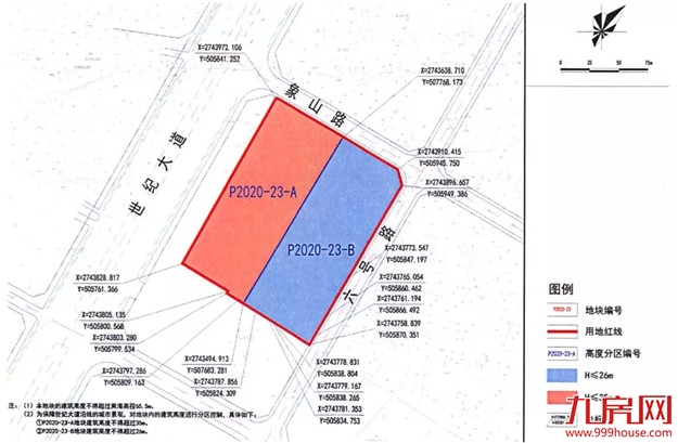
P2020-23号
该项目用地位于青阳街道象山社区,东至18米六号路,西临70米世纪大道,南至科技馆,北至18米象山路。
P2020-23号地块红线规划图
P2020-23号块地块现状图
地块价值
地块集优越区位、醇熟商业、畅达交通及优质教育等四大核心资源于一体,畅享满城繁华。周边配套优质教育资源,分布有幼儿园、小学、中学等晋江最优质的重点学校,其中P2020-4、P2020-5号地块将就读军民小学和罗山中学,P2020-23号地块将就读象山小学和实验中学。
景观资源方面有世纪公园、敏月公园等高颜值生态公园配套;医疗配套有晋江市医院、中医院、妇幼保健院等高标准医院。另外北侧毗邻集购物、餐饮、娱乐休闲为一体的宝龙广场,与区域内万达广场、SM国际广场形成一个商业繁华集中圈,可谓居住黄金地段。
地块所在区域属众多城市资源汇聚而成的核心领地,价值优势及市场认可度在近期也得到印证,周边项目市场关注度极高、反应热烈。
周边已出让地块情况




















闽公网安备 35020302035470号
最新评论