娱乐圈里,总有那么几个“小鲜肉”,新剧还未杀青,就已疯狂霸屏各大热搜头条。
福州地产圈也不例外。每年,总有一批纯新盘项目,占据着寸土寸金的地段、顶着各色的光鲜头衔,还未上市,就已彻底搅动市场风云。
与以往购房者伸长了脖子苦等不同,2020年进入最后两个月倒计时,福州“鲜肉”们的迭代速度可谓快的一批!
据九房网福州站踩盘小分队直奔一线现场获悉,本月,福州5大纯新盘项目已经蓄势待发!晋安、台江、仓山、闽侯均有所分布。
新房供应将迎来新一轮爆发!
更重要的是,四季度面临资金和业绩压力,更多新盘或选择低开,价格“撩人”……
一起来看看详细信息吧~
大东海晋棠府一期
1、楼盘位置:位于晋安区后屿路与前横路交叉口西南侧(后屿路口公交站旁)
2、楼面价:2019年12月30日,大东海集团以总价9.89亿元竞得宗地2019-67号地块,楼面价13443元/㎡,2020年6月24日,又以11.82亿最高限价+配建1200㎡竞得宗地2020-27号,楼面价13767元/㎡。两幅地块进行合并开发。
3、项目概况:项目占地约96亩,总建约21万㎡,一共1596户。其中一期占地45亩,总建面积9.6万㎡,规划规划5栋别墅+5栋高层,一共703户。一期安商房占比70%,二期安商房占比80%。
4、交房时间:预计2022年年底 毛坯交付
5、踩盘实录:一期安商房有三栋,集中分布在3#、5#、6#号楼,可售部分仅1#、2#号楼,共计136套。
1#号楼18层,2#号楼17层,一梯一户,户型有128㎡、148㎡两种,中间128㎡,两端148㎡,目前正在认筹阶段,无优惠信息,预计11月底两栋同时推,目前周边均价约32000元/㎡。
另外项目还带有29套商墅,面积170-203㎡左右,具体详细数据还未出来。
6、户型鉴赏
128㎡四房二厅二卫双阳台
148㎡四房二厅二卫双阳台
世茂·大东海同晖府
1、楼盘位置:位于福建省福州市台江区五一南路和新玉环路交叉口
2、楼面价:2020年4月15日,大东海集团以总价9亿元成功竞得福州2020-16号地块,楼面价10346元/㎡,由世茂和大东海合作开发,世茂操盘销售。
3、项目概况:项目占地约60亩,总建面8.70万㎡,公摊20%左右,总共905户,分四个地块开发,共规划有6栋高层和一所公立幼儿园,可售店面约60套,安商房比例约85%。
4、交房时间:预计2022年年底 毛坯交付
5、踩盘实录:项目安商房与商品房由地段隔开,可售商品房仅60套,位于1#号楼(A/B两栋)。
项目有两种户型:140㎡及221㎡。除了4套221㎡顶复,剩下的全是140㎡,独梯独户,19层高,目前项目处于认筹阶段, 定存享受一万元优惠,预计11月中旬开盘,60套住宅一次性推出。周边参考均价为35000-36000元/㎡。
需要说明的是,1#号楼前面的透明晶体为政府办公区域,6层高,届时6楼以下的房源价格会略低一些。
6、户型鉴赏:
140㎡四房两厅两卫
221㎡(顶复)五房两厅两卫双露台
中骏世界城·璟悦
1、楼盘位置:位于福州仓山上三路与南台大道交汇处
2、楼面价:2020年2月27日,中骏集团以45.6亿元竞得宗地2020-07号(仓山东升地铁停车场上盖及周边地块),成交楼面价约为13816元/㎡,溢价率9.6%。配建社会租赁住房2.4万㎡(可相对集中布局于地块B西侧),按6490元/㎡回购。
3、项目概况:项目占地约243亩,总体量预计达到45万方,包括21万方住宅、4500㎡幼儿园,以及14万方大型商业体。分为多个地块开发,其中A地块将打造购物中心(中骏世界城),B、C、E地块建盖住宅。
4、交房时间:预计2022年下半年 精装交付
5、踩盘实录:即将推出C地块的住宅项目,规划14栋11-16层的纯商品房,主力户型为95-143㎡三至四房。
首推1#、2#、3#、5#、6#这5栋楼,一共360多套,2梯4户,公摊约17%,目前差不多建了5-6层。
户型分布如下:95㎡的都是中间户型,1#、3#号楼两端为110㎡3房,2#、6#、5#这三栋楼端头是118㎡、128㎡的4房,目前项目认筹,没有优惠,价格还未出,参考周边均价约31000-33000元/㎡。
6、户型鉴赏:
95㎡三房两厅两卫
110㎡三房两厅两卫
118㎡四房两厅两卫
128㎡四房两厅两卫
融信海纳新潮
1、楼盘位置:备案名为海月龙峰,位于福建省福州市仓山区南二环与则徐大道交汇处
2、楼面价:今年6月24日,融信以最高限价41.32亿元+配建7200㎡摘得2020-30号地块,溢价率30.02%,成交楼面价约13521元/㎡。
3、项目概况:项目占地约185亩,分三个地块,A地块规划6栋,B地块20栋,C地块17栋高层。共计43栋住宅,其中有8栋配建安置房,安置房占比35%。总建面约40万方。容积率2.48,绿化率约30%,公摊18%-24%,一共1575户。
4、交房时间:预计2022年年底 部分精装,其余毛坯交付
5、踩盘实录:
43栋住宅共有79㎡、87㎡、89㎡、108㎡、109㎡、126㎡、127㎡、163㎡八种户型。
B地块为纯商品住宅,C地块的1-9#号楼(无4#号楼)可售,余下10#-18#楼为安置房。
项目首推A地块,预计本月内会开盘。
A地块的6#、7#号楼为人才租赁住房,5#号楼为商业公寓。
A地块1#、2#、3#栋楼为本期主推楼盘,推出89㎡、109㎡两种户型。
其中,1#、2#号楼全部是89㎡户型,3#号楼中间为89㎡户型,两端为109㎡户型。
价格尚不明确,可参考周边二手房,约在27000-29000元/㎡不等。
据置业顾问介绍,购房群体主要为周边的地缘客,拆迁户,还有一些台江区、鼓楼区的客户,看好该地区的性价比,也会感兴趣。
6、户型鉴赏
89㎡三房两厅两卫
109㎡四房两厅两卫
大唐星悦世家
1、楼盘位置:备案名为大唐星悦雅筑,位于福州大学城浦兴路(福州大学地铁站)
2、楼面价:2020年6月17日,大唐地产以3.51亿摘得闽侯2020-09号地块,楼面价8461元/㎡,溢价率40.38%。
3、项目概况:项目占地约23.93亩,共计3栋17层住宅+1栋14层商务办公大楼。总建面约5.4万方。容积率2.6,绿化率约30%,一共316户。
4、交房时间:预计2022年9月 毛坯交付
5、踩盘实录:预计11月开盘,目前可预约。3栋楼同期推出,楼层高17层,有户型65㎡、75㎡、88㎡三种户型。1#楼中间为65㎡户型,两端为88㎡户型。2#、3#楼中间是75㎡,两端是88㎡户型。
2#、3#号楼为2梯6户,1#号楼为2梯7户。预计销售价格在20000元/㎡以内,没有优惠。
6、户型鉴赏
65㎡两房两厅一卫
(户型装修建议图)
75㎡三房两厅一卫
(户型装修建议图)
88㎡三房两厅两卫
(户型装修建议图)
结语
如今福州楼市百花齐放,各区域明星楼盘持续亮相——
眼下,这波纯新盘中,不乏刚需、改善项目,可以充分满足不同的购房需求,对于购房者来说,现在还不用着急去买房成交,但却是看房选房的好时候。接下来,建议多去售楼处转一转,多跑、多看、多对比。
最后,看完以上楼盘“新面孔”,有你期待的它么?别忘了留言评论,我们扶你上墙。






































闽公网安备 35020302035470号
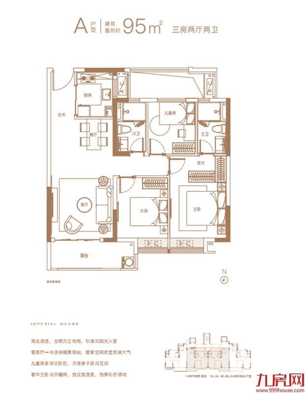
最新评论