建发乐活岛2024HP01地块拿地已经有一阵子了,此前流传出了总平图和产品面积段,并定名“建发·湾墅”,吸引了众多终改客户咨询别墅户型和价格,很多人都在等!
(总平图)
今天,我们拿到了内部流出的户型图,作为厦门市场上仅有的新房别墅,户型确实有些出人意料的惊喜——
①220㎡的别墅,即使不计算花园和庭院面积,综合使用率也超过了240%!空间媲美540多平的大平层!!!
②户型设计上,除了前庭后院,约6m层高地下室,约6m挑高客厅,赠送的5个花园露台面积合计约70平!
③还有更多“小心机”:所有卧室都是套房;长辈房特别设置无障碍卫生间;贴心预留了约4㎡电梯厅,超高开窗面,南北向超大面宽,与进深比接近1:1……
④为每套别墅门头定制牌匾,呈现王府大院特有的专属仪式感。
用一句话概括就是神户型卖点大融合!
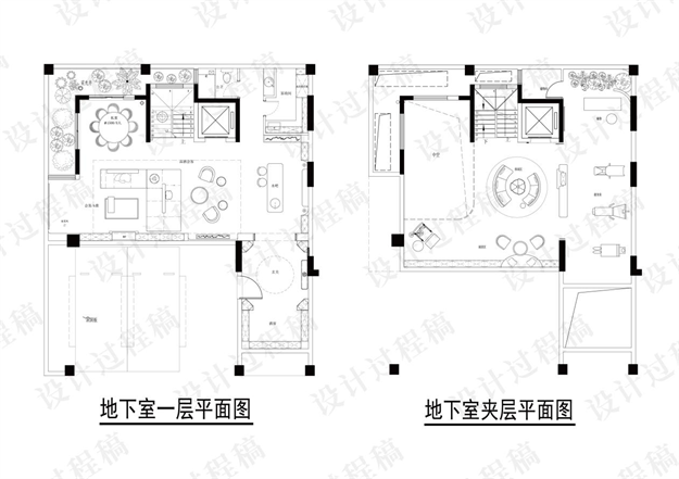
负一层:
首先是地下室!作为空间拓展的重要部分,这次湾墅的地下室最高可以做到挑高6米!可以做夹层,或者多功能厅,放个巴洛克式水晶大吊灯都妥妥的!
(负一层平面图+地下室参考图片)
BASEMENT地下室
负一层参考示意图
一层:作为边套户型,270°三面观景,中西双厨、餐厨客一体都是基本操作,但,一个面宽7.7米的一体式餐厨客,是有点惊喜的。加上这个“能开舞会”的餐厨客,还做到了真正对得起“豪宅”这个词。
此外,三面庭院环绕,套房式观景老人房,也都可圈可点。同时边套户型一共设置了三个出入口,南、北及东侧或西侧,可以根据日常生活习惯规划不同出入动线。
1F地面一层
一层参考示意图
二层:醒目的赠送!赠送!赠送!客厅挑空送的约22㎡、送阳台、送露台!所有卧室全朝南,全自带甲板式阳台/露台,真正做到了将风景放在手里把玩。
2F地面二层
二层参考示意图
三层:主人专属层,打造“湾区头等舱”式豪华主卧:带独立起居室,豪华衣帽间、酒店式豪华主卫!还带海景露台!足以单拎出来吊打同等价位的大平层产品。
3F地面三层
三层参考示意图
屋面花园:住海景别墅最震撼的,是不是站在落地窗或阳台的那一刻?这个约32㎡的屋顶花园,能把这样的震撼再放大几倍,仿佛剧院里的豪华包厢,看湾海在眼前缓缓拉开帷幕,每日上演不同精彩。
ROOFTOP屋顶花园
露台参考示意图
有些创新,你会为它鼓掌。但建发的创新,会让你忍不住为它买单。
在别墅地块断供十年之后,作为整个市场上唯一在售的纯别墅项目,总共就49套,说一声稀缺不为过。如果你是手持千万准备入场的改善客,建议可以在看过建发·湾墅后再做决定。
另外,近期厦门重新调整了第四代住宅规控,要求岛外立体生态住宅套型建筑面积(含公摊)不得少于120㎡。新规控出台后,建发乐活岛A2地块将成为厦门首个第四代看海低密洋房产品。
这个“首个”,或许不仅局限于厦门,更可能是闽南首个、福建首个!
从这样的产品迭新里,我们看到持续在精进的建发,每个项目几乎都是一次新突破,每一次突破都是对厦门人居迭代的精准捕捉。
正因为此,哪怕市场风云变幻,建发却愈发游刃有余。
正因为此,建发,才是我们熟悉的那个建发。



















闽公网安备 35020302035470号
最新评论